序言
鈦及鈦合金因其低密度、高比強度與比剛度、良好的耐腐蝕性能、優異的低溫韌性、抗疲勞與蠕變能力,以及無毒、無磁等一系列綜合優勢,自20世紀中期起,逐漸成為航空工業中不可替代的關鍵結構材料.然而隨著航空裝備性能要求的不斷提升,部分構件所處服役環境日趨嚴苛,對材料的耐腐蝕性、低溫韌性以及高溫耐受能力提出了更高標準.在此背景下,傳統單一鈦合金焊接結構已難以完全適應極端工況下的綜合性能需求.[1-2]因而異質鈦合金組合結構因其可綜合發揮不同材料優勢并降低成本而備受關注.
目前國內外學者對鈦合金的連接展開了廣泛的研究,所涉及到的焊接方法包括線性摩擦焊[3-4]、電子束焊[5-6]、釬焊[7-8]、激光焊[9-10]和電阻焊[11-15]等.在電阻焊方面,唐順安等人[12]實現了R60702鋯合金和Ti6Al4V鈦合金異種合金的電阻點焊,發現接頭斷裂模式隨電流增大由界面斷裂轉變為拉出斷裂.WANG等人[13]用電阻點焊配合黃銅箔夾層實現了AZ31B鎂合金與TA2鈦合金的連接,發現使用黃銅中間層能改善接頭間潤濕性提升了接頭力學性能。PIOTR等人[14]對比二級和五級鈦合金點焊接頭,研究焊點數量和排布方式對接頭承載能力的影響.FATMAHARDI等人[15]采用田口法研究 Ti-6Al-4V點焊,發現高熱輸入會增大熔核和壓痕深度,但易導致飛濺和馬氏體硬化,降低延展性.在電極方面,劉澤宇等人[16]、ZHOU等人[17]和GUO等人[18]研究了電極端面形狀對接頭性能的影響.目前國內外學者對異種鈦合金的連接以及電極形狀研究了很多,關于TC4/TA2異質鈦合金連接及特殊的電極結構研究較少.
直升機采用了TC4/TA2異質鈦合金板材V形復合結構,目前在其他型號直升機采用鉚接形式,但鉚接質量不穩定、噪聲大、效率較低,同時鉚接釘帽會劃傷此結構件導軌,且在此結構件滑動使用過程出現磨損后會導致其鼓動脫落[19].與傳統鉚接工藝相比,電阻點焊工件的表面更加平齊美觀,加工效率更高.文中運用ABAQUS建立點焊數值模型以觀察熔核形成過程;基于特殊的V形復合結構設計專用電極,研究焊接參數對接頭宏觀成形與拉剪性能的影響,確定最優參數及其工藝裕度,并深入分析接頭微觀組織及力學性能.
1、試驗方法
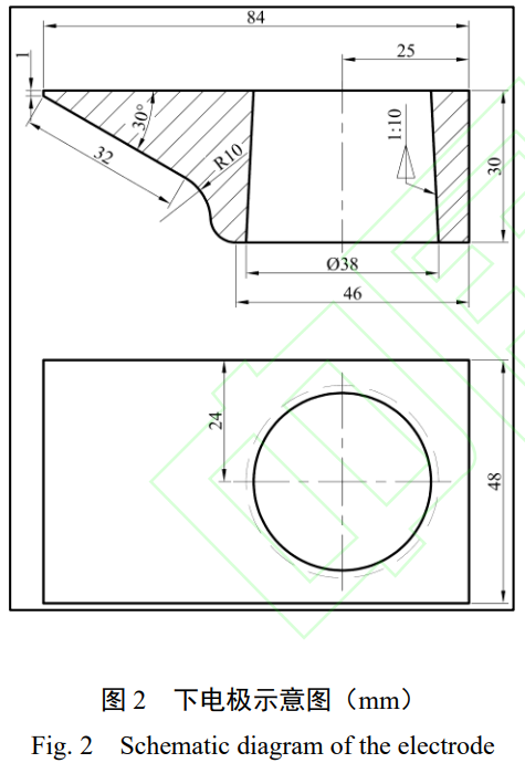
試驗采用0.6mm厚的TC4和1.0mm厚的TA2鈦合金板材,尺寸為100mmx25mm,其化學成分分別如表1和表2所示.試驗采用DZ-3x100三相次級整流電阻點焊機進行焊接,上電極選用Cr-Zr-Cu球面電極,端面直徑為20mm,球面半徑為50mm,下電極基于特殊的V形材料結構,如圖1所示.設計成如圖2所示的類楔子型結構.焊接之后在WDW-100微機控制電子式萬能試驗機上進行拉伸,拉伸示意圖如圖3所示.利用電火花線切割機沿著焊點直徑方向橫切點焊接頭,鑲嵌、研磨、拋光后采用Kroll腐蝕液對試樣進行腐蝕,然后用掃描電子顯微鏡(SEM)對接頭分析以及硬度測試.
表1 TC4的化學成分(質量分數,%)
| 材料 | Ti | Al | V | N | C | H | Fe | 0 |
| TC4 | 余量 | 5.5 | 3.5 | 0.05 | 0.08 | 0.015 | 0.30 | 0.20 |
表2 TA2的化學成分(質量分數,%)
| 材料 | Ti | N | C | H | Fe | O |
| TA2 | 余量 | 0.03 | 0.08 | 0.015 | 0.30 | 0.25 |



2、數值仿真分析
2.1點焊過程有限元數值分析模型
采用ABAQUS軟件進行有限元模擬,建立熱-電-力多場耦合的仿真模型.建立如圖4所示的軸對稱模型,為了方便模擬計算只保留下電極前端部分采用非均勻劃分方法,焊接區域的工件單元尺寸大小為0.2,電極接觸部分的近似單元尺寸大小為0.3,模型中總計生成39553個節點和33366個單元,網格采取Q3D8R八節點實體單元.電極和工件的主要熱物理屬性如表3所示.模型環境溫度為20℃恒定不變,電極和工件初始溫度為20℃.電極和工件表面輻射系數和對流換熱系數始終保持不變.分別建立上電極與TC4、TC4與TA2、TA2與專用電極以及專用電極與接桿4個接觸對.將接桿與焊機下臂連接的錐面部分所有的移動和轉動完全施加為固定約束,上電極上端橫截面僅保留上下平移即沿Y方向移動的自由度.
表3焊接材料的主要熱物理性能參數
| 類別 | 熱導率 λ/mW/(mm PC) | 彈性模量 E/103MPa | 屈服強度 σy/MPa | 膨脹系數 a/10-5/℃ | 比熱容 c/106mJ/(t℃) | 電阻率 σ/10-2mQ·mm |
| CuCrZr | 390.3 | 124 | 248 | 1.656 | 397.8 | 2.46 |
| TC4 | 6.8 | 109 | 920 | 8.4 | 611 | 1.349 |
| TA2 | 16 | 108 | 373 | 8.2 | 503 | 0.340 |

2.2數值模擬精度分析及試驗驗證
如圖5所示為焊接電流I=6.2kA,焊接時間t=0.1s,電極壓力P=2.65kN下的熔核尺寸試驗與模擬對比,圖5中熔合區(FZ)的溫度在1605℃以上,母材的溫度在416℃以下,熱影響區(HAZ)的溫度在兩者之間.從圖5中不難看出,在相同的焊接工藝參數下,試驗結果與模擬結果吻合較好.
熔核直徑模擬結果為4.57mm,試驗結果為4.41mm,相對誤差為3.5%.TC4側焊透率模擬結果為49.5%,試驗結果為47.8%,相對誤差為3.4%.TA2側焊透率模擬結果為68.2%,試驗結果為64.4%,相對誤差為5.5%.試驗結果與模擬結果數據的相對誤差均在10%以內,且由于模擬環境接近實際點焊中的環境,該模型具有較高的準確性.

3、試驗結果與分析
3.1點焊熔核形成過程的模擬結果
圖6展示了最佳工藝參數下點焊過程的溫度場演化規律.在焊接初始階段,圖6(a)中工件接觸面因接觸電阻高于電極-工件界面而優先升溫.圖6(b)和圖6(c)中隨著通電持續,該區域溫度持續升高導致接觸電阻降低,電流密度增強,進一步導致溫度升高.同時工件電阻率上升引發電阻熱增加,圖6(d)中當溫度超過1605℃時形成初始熔核.圖6(e)中通電時間繼續增加后,在電流與電極壓力協同作用下,熔核尺寸持續擴展,溫度趨于穩定;因電極散熱效應,熔核長大速率逐漸減緩.通電結束時如圖6(f)所示,熔核完成軸向及徑向擴展達到最大尺寸.需特別指出,因材料屬性差異及板厚不對稱,熔核向厚板側發生顯著偏移.

3.2工藝參數對接頭熔核成形及力學性能影響
不同焊接參數對TC4/TA2點焊接頭拉剪載荷、熔核直徑、壓痕率以及焊透率的影響如圖7和圖8所示.最佳的焊接工藝參數為,焊接電流I=6.2kA,焊接時間t=0.1s,電極壓力P=2.18kN.該焊接參數下的接頭拉剪載荷為6.73kN,熔核直徑為4.43mm,TC4和TA2的焊透率分別61.5%和72.8%,TC4的表面壓痕率為13.0%.符合航空工業標準HB5427-1989《鈦及鈦合金電阻點焊和縫焊質量檢驗》中的要求.隨著焊接電流、焊接時間、電極壓力增加,接頭的拉剪載荷均呈現先增大后減小的“駝峰曲線”趨勢.接頭熔核直徑和焊透率隨電流和時間增加而增大,隨壓力增加減小;TC4側壓痕率隨電流、時間和壓力增加均增大.


由圖7(a)、圖7(b)和圖8(a)、圖8(b)可知,當焊接電流小于6.2kA或者焊接時間小于0.1s時,熱輸入不足,熔核直徑偏小,有效連接界面受限,接頭拉剪載荷因而較低.增大焊接電流或時間可顯著增加熱輸入,促進熔核充分生長、直徑擴大及焊透率提高,有效連接面積隨之增大,冶金結合增強,顯著提升接頭載荷.當電流持續增大至超過臨界值11.3kA,單位時間熱輸入過高導致塑性環擴展速度超越熔核,在電極壓力作用下,熔融金屬易發生飛濺造成材料損失,在接頭內形成氣孔、縮孔等缺陷,嚴重削弱接頭承載能力.同樣,增加焊接時間會引發焊點組織過度粗化,同時加劇母材及熱影響區軟化現象,最終導致焊點強度下降.如圖7(c)和圖8(c)所示,當電極壓力小于2.18kN時,接觸面積小、總電阻大、電流密度高,焊接區域析熱量劇增,這雖促使熔核尺寸增大、焊透率提高,但過量的熱輸入反而造成接頭強度劣化.當電極壓力超過臨界值2.18kN,極高的貼合度顯著降低接觸電阻,同時熱量經高導熱電極快速散失,致使熔核尺寸減小、焊透率降低,接頭強度亦隨之下降.
3.3點焊接頭微觀組織分析
圖9展示了最佳工藝參數下的點焊接頭橫截面的宏觀形貌及顯微組織特征.圖9(b)為圖9(a)中A區域放大3000倍后的熱影響區組織形貌,該區域存在大量細小且分布散亂的針狀馬氏體(a'相)組織,且靠近焊縫的部分其初生a相在焊接熱循環中于相變溫度以上滯留時間較長,得以充分轉變為β相并長大成針狀,隨后在快速冷卻過程中以非擴散切變方式轉變為針狀a’相,由于更苛刻的冷卻條件,形成的a'相比熔核區更細小,呈現網籃狀分布.圖9(c)為圖9(a)中TA2側B區域放大1000倍后的熱影響區組織形貌,該區域雖未熔化,但在熱循環作用下當溫度達到或超過β相變點時,原始等軸α相轉變為大尺寸β相,在隨后的冷卻過程中,由于TA2幾乎不含β相穩定元素(如釩),相變以原子擴散為主導,β相分解并通過擴散重新轉變為a相,且a相生長方向不固定,最終形成具有鋸齒形晶界的不規則塊狀a相組織;與富含β穩定元素的TC4側相比,TA2側因難以發生非擴散的馬氏體相變而以粗大α晶粒為主,故馬氏體組織顯著減少.圖9(d)為圖9(a)熔核中C區域放大1000倍的組織形貌,該區域主要由粗大的馬氏體a'相構成;熔核區經歷最高溫度,且越接近中心冷卻速度越快,這極大地促進了大量β相向a'相的穩定切變轉變,導致形成數量眾多且尺寸粗大的a'晶粒.a'相優先在β相的晶界處形核,隨后從晶界向β晶粒內部生長擴展,最終形成了按晶體學位向排列的層片狀馬氏體a'相.

3.4點焊接頭硬度分布
最佳工藝參數下的試樣接頭顯微硬度測試結果如圖10所示,TC4側呈現顯著區域性梯度:熔核區硬度最低(約為233HV),雖富含馬氏體a’相,但其粗大板條結構削弱強化效果;熱影響區近熔核處因細晶馬氏體高密度位錯阻礙位錯運動,硬度峰值達320HV,而遠離熔核區域因熱循環降溫導致β→a'相變不充分及組織不均,硬度下降;母材區受熱影響小,組織穩定,硬度居中(約為284HV).TA2側分布趨勢相反:熔核區硬度最高(約為242 HV),母材最低(約為149HV),熱影響區略高(約為155HV).盡管兩側熔核區組織形貌相似,但TC4與TA2的化學成分差異導致凝固過程中溶質擴散不充分,引發成分偏析與硬度差異.TA2熱影響區以粗大α晶粒為主,但微量針狀馬氏體的相變強化主導其硬度提升.TC4母材因更細小晶粒及Al/V元素的固溶強化,硬度顯著高于TA2母材.

4、結論
(1)采用電阻焊方法可實現直升機TC4/TA2不等厚小V形結構件有效連接,其接頭組織及性能均符合航空標準要求.
(2)模擬TC4/TA2鈦合金電阻點焊接頭形成過程,熔核隨著焊接時間增大逐漸長大,最終形成橢圓形熔核且向TA2側偏移.試驗結果與模擬結果數據的相對誤差均在10%以內.
(3)最佳焊接工藝參數為I=6.2kA、T=0.1s、P=2.18kN,此時接頭強度6.73kN,熔核直徑4.43mm,TC4焊透率61.5%、TA2焊透率72.8%,TC4壓痕率13.0%.TC4側熱影響區組織由針狀a'相、初生a相和初生β相組成,硬度最高(約為320HV),熔核主要是粗大的片層狀馬氏體a'相,硬度居中(約為235HV),TA2側熱影響區主要為塊狀a相以及少量針狀a'相構成,硬度最低(約為155HV).
參考文獻
[1] DONG Z H, TIAN Y, ZHANG L, et al. Research status of high efficiency deep penetration welding of medium-thick plate titanium alloy: a review[J]. Defence Technology,2025,45:178-202.
[2]陳昊睿,羅玖田,馮志強,等.鈦合金熔化焊技術研究現狀及發展趨勢[J].電焊機,2025,55(8):1-23,46.
CHEN Haorui, LUO Jiutian, FENG Zhiqiang, et al. Research status and development trend of titanium alloy melting welding technology[J]. Electric Welding Machine,2025,55(8):1-23,46.
[3] TERRY B, SHELTON A, STRAUSS A. Microstructure and mechanical properties of dissimilar friction stir welding between butted, thin sheet NiTi and Ti-6Al-4V[J]. Welding in the World,2025.DOI:10.1007/s40194-025-02162-8.
[4] LI S, GUO Z, MA T. Linear friction welding of TC21 damage tolerance titanium alloy: Microstructure evolution, failure behavior and strengthening mechanism[J]. Materials Today Communications,2025,49:114096.DOI:10.1016/j.mtcomm.2025.114096.
[5] PEREVALOVA O B, PANIN A V, KAZACHENOK M S.Formation of the a"-phase in the electron beam weld of a+βdissimilar titanium alloys[J]. Journal of Materials Engineering and Performance,2025.DOI:10.1007/s11665-025-11616-5.
[6] YAN Y, LIU P, WANG A, et al. Investigation on the room temperature compressive creep behavior of TC4 titanium alloy joints with vacuum electron beam welding[J]. Solid State Communications,2024,391:115641. DOI:10.1016/j.ssc.2024.115641.
[7]許敬鑫,胡勝鵬,宋曉國,等.TiZrNiCu非晶釬料釬焊Ti60/Ti2AlNb鈦合金接頭界面組織與性能[J].焊接學報,2025,46(6):34-40.
XU Jingxin, HU Shengpeng, SONG Xiaoguo, et al. Interfacial microstructure and mechanical property of Ti60/Ti2AlNb alloy joints brazed with TiZrNiCu amorphous filler metal[J].Transactions of the China Welding Institution, 2025, 46(6): 34-40.
[8] LING L, TENG J, CHEN M. Microstructure evolution,diffusion behavior and fatigue properties of TC4 titanium alloy joints brazed with Ti-Zr-based filler[J]. Welding in the World,2022,66(12):2625-2638.DOI:10.1007/s40194-022-01387-1.
[9]程東海,張聲金,陶玄宇,等.添加稀土元素的TC4鈦合金激光焊接頭縱向超塑性能研究[J].焊接學報,2024,45(7):19-26.
CHENG Donghai, ZHANG Shengjin, TAO Xuanyu, et al. Study on the longitudinal superplastic properties of TC4 titanium alloy laser welded joint with rare earth elements[J]. Transactions of the China Welding Institution, 2024, 45(7): 19-26.
[10] ZHANG Y, GAO K, HU B, et al. Research on Microstructure and mechanical properties of double-sided laser welded joints of TC4 titanium alloy[J]. Journal of Materials Engineering and Performance, 2025. DOI:10.1007/s11665-025-12548-w.
[11]易潤華,鄧黎鵬,劉奮成.航空鈦合金電阻點焊的動態特征分析[J].機械工程學報,2025,61(16):166-179.
YI Runhua, DENG Lipeng, LIU Fencheng. Dynamic characteristics analysis of resistance spot welding of aviation titanium alloy[J]. Journal of Mechanical Engineering, 2025,61(16):166-179.
[12]唐順安,孫佳奇,高明月,等.R60702鋯合金和Ti6Al4V鈦合金電阻點焊的微觀組織與力學性能研究[J].機械制造與自動化,2025,54(5):27-30.
TANG Shunan,SUN Jiaqi,GAO Mingyue,et al.Research on microstructure and mechanical properties of R60702 zirconium alloy and Ti6Al4V alloy resistance spot welding joints[J]. Machine Building& Automation, 2025, 54(5): 27-30.
[13] WANG N, WANG J, HU Y, et al. Microstructure and Properties of Mg/Ti Joint Welded by Resistance Spot Welding with a Brass Interlayer[J]. Journal of Materials Engineering and Performance,2025.DOI:10.1007/s11665-025-12422-9.
[14] PIOTR L, JUDYTA N M, PIOTR L, et al. Numerical and Experimental Analysis of Lap Joints Made of Grade 2 Titanium and Grade 5 Titanium Alloy by Resistance Spot Welding[J].Materials,2023,16(5).DOI:10.3390/ma16052038.
[15] FATMAHARDI I, MUSTAPHA M, AHMAD A, et al. An Exploratory Study on Resistance Spot Welding of Titanium Alloy Ti-6Al-4V[J].Materials,2021, 14(9):10.3390/ma14092336.
[16]劉澤宇,巢昺軒,李智勇.電極端面對鋁/鍍鋅鋼異種金屬電阻焊接頭組織性能的影響[J].焊接技術,2025,54(1):32-38.
LIU Zeyu, CHAO Bingxuan, LI Zhiyong. The influence of electrical terminals on the microstructure and properties of resistance welded joints of Aluminum/Galvanized Steel dissimilar metals[J]. Welding Technology, 2025, 54(1): 32-38.
[17] ZHOU K, REN B, YU W. Optimized designing of generalized electrodes for aluminum/steel resistance spot welding process based on numerical calculation[J]. Journal of Manufacturing Processes,2023,99:563-580.
[18] GUO J, BI J, WANG S, et al. Modeling the effect of electrode morphology on Mg/steel resistance spot welding[J].The International Journal of Advanced Manufacturing Technology,2022,120(1):137-148.
[19]仇繼偉,左楊杰,蘇嬌.針對飛機小曲率結構的半自動化電磁鉚接系統設計[J].機床與液壓,2022,50(20):135-140.
QIU Jiwei, ZUO Yangjie, SU Jiao. Design of Semi-automated Electromagnetic Riveting System for Small Curvature Structures of Aircraft[J]. Machine Tool& Hydraulics, 2022, 50(20): 135-140.
(注,原文標題:TC4/TA2鈦合金特殊結構電阻點焊接頭熔核形成及力學性能分析)
相關鏈接